Full Floor Creative Sublease in Dupont

September 6, 2019

Jon Glass

Tech Leader

Corporate Managing Director, Savills Studley

DC/MD/VA Licensed Real Estate Salesperson

Call 202-540-5509

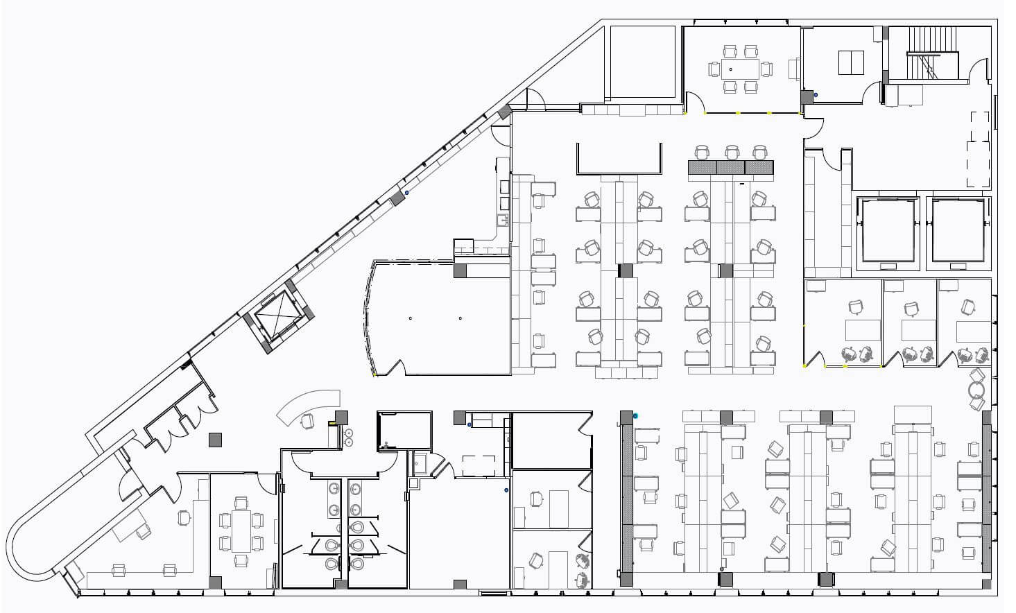
Full Floor 9,600 SF Sublease Available at 2121 Ward Place in Dupont

 

One of the first blogs I wrote here at TechOfficeSpaces.com was on a full floor space available at 2121 Ward Place, known as the Duke Ellington Building.  It was this type of unique space in a little-known boutique building in Dupont that inspired me to start the blog in the first place. The demand from tenants for this type of product was overwhelming then and even stronger today…

Now, two years after that original blog, a new space has hit the market at 2121 Ward Place with all the features to spark a dynamic and collaborative workspace.

Measuring 9,600 SF, the suite is incredibly efficient with little wasted space throughout. There are over 50 workstations, 6 private offices and 4 meeting areas of varying sizes.

The ability to control an entire floor at under 10,000 SF in a location like Dupont is a rarity that may be perfect for architecture firms or TAMI tenants that value collaborate, efficient and unconventional space. Being that it is a free standing building, there are 4 sides of glass allowing for an abundance of natural light.

For more information, or to arrange a tour, please fill out the office space questionnaire or email me directly!

 

Recent Posts


Yelp Signs Lease at Terrell Place in Gallery

  • By Jon Glass | August  07,  2017

Company Plans for 500 New Hires, Will Move Into 52,000 SF Later This Year   Huge news to hit the wire this week. Yelp, the San Francisco-based tech giant specializing…

Year in Review – The Largest Office Relocations

  • By Lance Leighton | February  01,  2018

2017 was a solid year for New York City commercial office leasing.  Though the crystal ball for the future of Manhattan’s office market is a bit cloudy at the moment,…

Wingate Hughes’ Former Space Available for Sublease at

  • By Jon Glass | February  28,  2018

3,000 SF Sublease with Term Through June 2020 Perfect for Tech/Start-Up Companies   A large portion of the spaces featured here on the Washington, DC page of TechOfficeSpaces.com have been designed by Wingate…