Steelcase’s Showroom Space is Perfect Fit For Creative Users

November 28, 2017

Jon Glass

Tech Leader

Corporate Managing Director, Savills Studley

DC/MD/VA Licensed Real Estate Salesperson

Call 202-540-5509

Full Floor Available on 14th Street with Sleek, Modern Finishes

 

1121 14th Street is somewhat of a hidden jewel tucked away just south of Thomas Circle.

The building often flies under the radar for creative users, likely because of its seldom vacancy and traditional association ownership. Back in August, I wrote a piece on a great tech suite in the building, which has since been leased by the marketing communications and design agency, ThomasARTS.

And if the cat hasn’t totally been let out of the bag about this great building, it is surely about to escape with the announcement of the 4th floor coming available next summer…

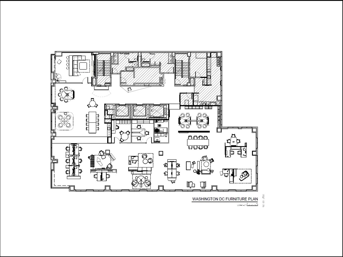
Office furniture solutions behemoth, Steelcase, is vacating its 8,068 SF showroom space on the 4th floor in June 2018, which can be an absolute steel (get it) for one lucky user.

Showroom space is always a homeroom for tenants looking for open floor plans because the upkeep is impeccable, the finishes are usually high-end, and nobody actually uses the space. It’s like the perfect model home that has never seen a dirty dish or a lit match in the restroom!

The 4th floor can be entirely branded by the tenant, providing the opportunity to make an immediate impression on your employees and guests as they exit the elevator.  This is rare for an 8,000 SF user, but a powerful way to show off your company’s culture, mission and values.

It should also be noted that there are only two columns on the entire floor, with virtually no areas of obstruction. Natural light is not a problem, as the floor has three sides of windowline, with floor-to-ceiling glass along 14th Street.  

With an asking rent of $49.75/SF, it is great value for a building that is only 11 years old. The building is also LEED Gold Certified & Energy Star rated and includes includes a Balance Gym next door for convenient access.

For information on this space and others like it, please fill out our questionnaire or email us directly!

 

Recent Posts


 New York City Office Space Timeline

  • By Lance Leighton | September  11,  2014

How long does it take to lease commercial real estate in New York City? The TechOfficeSpaces.com Team is often asked how long it takes to move into new office space…

Year in Review – The Largest Office Relocations

  • By Lance Leighton | February  01,  2018

2017 was a solid year for New York City commercial office leasing.  Though the crystal ball for the future of Manhattan’s office market is a bit cloudy at the moment,…

Wingate Hughes’ Former Space Available for Sublease at

  • By Jon Glass | February  28,  2018

3,000 SF Sublease with Term Through June 2020 Perfect for Tech/Start-Up Companies   A large portion of the spaces featured here on the Washington, DC page of TechOfficeSpaces.com have been designed by Wingate…