Second Installment of Snap’s Venice Sublease Portfolio

March 27, 2018

Matt Anderson

Market Expert

Assistant Director, Savills Studley

California Licensed Real Estate Salesperson

Call 213-553-3861

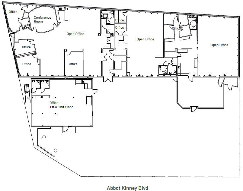
901 Abbot Kinney is a 14,275 SF free-standing brick building with its own dedicated and gated parking lot on the northern bookend of Venice’s famous Abbot Kinney Boulevard. Situated at the corner of Abbot Kinney and Brooks Avenue, this building is the former home of legendary design aficionados Charles & Ray Earnes. Within walking distance to local Venice eateries (Gjelina, Felix, MTN) as well as a handful of coffee shops to choose from (Intelligentsia, Blue Bottle) as well as being surrounded by a myriad of creative office tenants in the tech, new media and internet industries.

This space can be made yours for the low low price of…drumroll please…$10.00/NNN!!!!!!!! Sublease term through October 2024 and 20 on-site parking spaces with the ability to add more with a valet assist.

The layout is situated as such that it has a handful of private offices surrounding a good amount of open space. There is also a 2nd story mezzanine on top of the ground floor where the restrooms are located as well as scattered workstations. There are a few outdoor private breakout areas to lounge as well as a private patio.

For more information about this space or others like it, please contact us here.

Recent Posts


 New York City Office Space Timeline

  • By Lance Leighton | September  11,  2014

How long does it take to lease commercial real estate in New York City? The TechOfficeSpaces.com Team is often asked how long it takes to move into new office space…

Year in Review – The Largest Office Relocations

  • By Lance Leighton | February  01,  2018

2017 was a solid year for New York City commercial office leasing.  Though the crystal ball for the future of Manhattan’s office market is a bit cloudy at the moment,…

Wingate Hughes’ Former Space Available for Sublease at

  • By Jon Glass | February  28,  2018

3,000 SF Sublease with Term Through June 2020 Perfect for Tech/Start-Up Companies   A large portion of the spaces featured here on the Washington, DC page of TechOfficeSpaces.com have been designed by Wingate…