OFF-MARKET CREATIVE STAND ALONE BUILDING WITH AN ARCHITECTURAL BUILD OUT IN THE HEART OF DTLA’s CORNFIELDS DISTRICT

June 28, 2017

OFF MARKET OPPORTUNITY – 129 W Llewllyn Street presents a gorgeous and creatively built out space located in DTLA’s newest up-and-coming submarket in the Cornfields District. Located just 2 miles from DTLA and the CBD, the Cornfields District is located just north of Chinatown. Host to a myriad of creative tenants – architects, artists, music companies, production companies, photographers – this area has everything a tenant with a creative mind wants. Within walking distance to the LA Historic Park to the North and Chinatown to the South. It is also steps away from the new Metro Gold Line Chinatown Station to get to Union Station or any of the various Metro lines to get anywhere in LA.

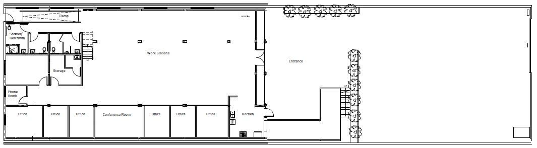
With an architecturally mindful space, it boasts 5,200 SF of beautiful wide open space. It consists of 6 interior offices with stunning metal and glass sliding doors for each office, a small conference room, a brand new kitchen with stainless steel appliances, in-suite restrooms, tons of open space for work stations/cubes, and a floating “second” floor mezzanine space that acts as a large conference room. The kicker: it has an outdoor event space (with its own bar) with a capacity to hold over 100 people. The space comes with on-site parking of +/-10 parking spaces in a private gated lot at no additional charge to tenant.

Come see your new home in the Cornfields District today!!

For more information about this space or others like it, please contact us here.

Recent Posts


 New York City Office Space Timeline

  • By Lance Leighton | September  11,  2014

How long does it take to lease commercial real estate in New York City? The TechOfficeSpaces.com Team is often asked how long it takes to move into new office space…

Year in Review – The Largest Office Relocations

  • By Lance Leighton | February  01,  2018

2017 was a solid year for New York City commercial office leasing.  Though the crystal ball for the future of Manhattan’s office market is a bit cloudy at the moment,…

Wingate Hughes’ Former Space Available for Sublease at

  • By Jon Glass | February  28,  2018

3,000 SF Sublease with Term Through June 2020 Perfect for Tech/Start-Up Companies   A large portion of the spaces featured here on the Washington, DC page of TechOfficeSpaces.com have been designed by Wingate…