GET THE FIRST LOOK AT SNAP’S ENTIRE VENICE PORTFOLIO NOW FOR SUBLEASE

March 9, 2018

Matt Anderson

Market Expert

Assistant Director, Savills Studley

California Licensed Real Estate Salesperson

Call 213-553-3861

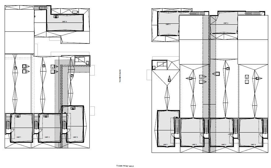
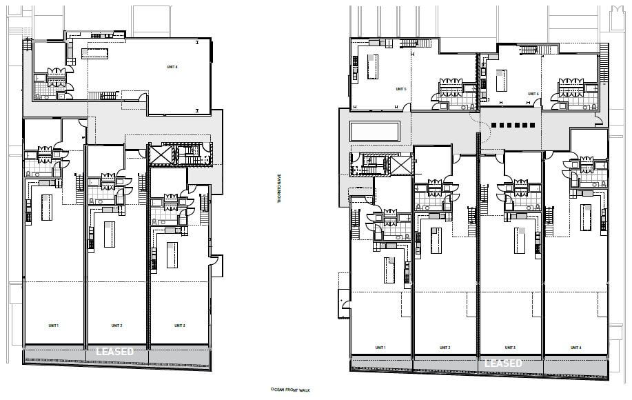
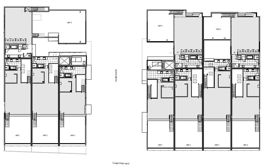
619 & 701 Ocean Front WalkThornton LoftsSnap’s largest flagship location in Venice is now available for sublease. Located right on the Venice boardwalk with direct access to Venice Beach. The project consists of 2 buildings side by side and 10 loft units altogether. Each unit features a full kitchen and bathrooms with high-end finishes. Interior spaces have high ceilings and interconnecting mezzanines with stairwells, and there are several private roof decks with expansive ocean views. On-site parking with 108 parking spaces in a private subterranean structure. Located right in the heart of Silicon Beach and surrounded by a host of neighboring tenants all in the tech, new media and e-commerce industries.

The 619 building is approximately 18,594 RSF and the 701 building is approximately 26,293 RSF. Together a tenant can lease a combined square footage of 44,887 RSF. Asking rent is $5.75/NNN, you could take occupancy May 1, 2018 and the sublease runs through February 2022.

Come check it out before the next tech giant gobbles it up…

For more information about this space or others like it, please contact us here.

Recent Posts


 New York City Office Space Timeline

  • By Lance Leighton | September  11,  2014

How long does it take to lease commercial real estate in New York City? The TechOfficeSpaces.com Team is often asked how long it takes to move into new office space…

Year in Review – The Largest Office Relocations

  • By Lance Leighton | February  01,  2018

2017 was a solid year for New York City commercial office leasing.  Though the crystal ball for the future of Manhattan’s office market is a bit cloudy at the moment,…

Wingate Hughes’ Former Space Available for Sublease at

  • By Jon Glass | February  28,  2018

3,000 SF Sublease with Term Through June 2020 Perfect for Tech/Start-Up Companies   A large portion of the spaces featured here on the Washington, DC page of TechOfficeSpaces.com have been designed by Wingate…