Check Out Uber’s Sublease Space at 1717 Rhode Island Ave in Dupont Circle

August 23, 2018

Jon Glass

Tech Leader

Corporate Managing Director, Savills Studley

DC/MD/VA Licensed Real Estate Salesperson

Call 202-540-5509

Full Floor Tech Sublease Great for Tenants Looking For Open, Efficient Space

 

Back in 2015, transportation giant, Uber made waves within the DC tech community when it signed a lease for 73,000 SF on floors 1-5 at 1717 Rhode Island Avenue, nearly half of the 10-story building next to St. Michaels Cathedral.

Now 3 years later, the company is looking to offload a portion of its Dupont Circle space, allowing a future subtenant rare proximity to one of the biggest tech companies in the world.

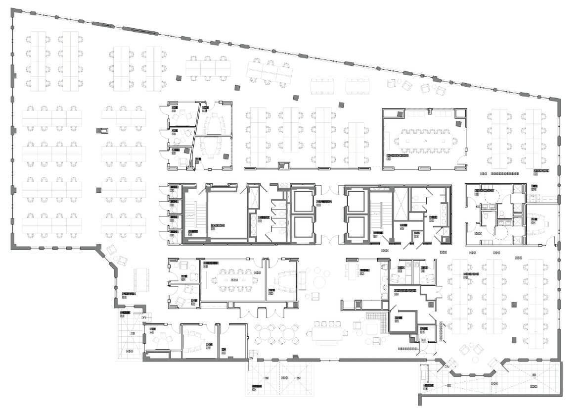
Perfect for tenants looking for a highly efficient open plan, the 5th floor suite allows for 172 work desks, 10 team rooms, 4 conference rooms and 4 offices. At 17,850 SF, this translates into a 1:101 employees to SF ratio. See floor plan below.

What is unique about this property is that it blends the historic row houses along Rhode Island Ave with a distinctive architectural addition that was built in 2005. The rowhome portion of the building is 4 stories, so the 5th floor is nice in that there are 3 private terraces above the rowhomes that will be exclusive to the future subtenant. Also, being that it is a free standing building, there are 4 sides of glass allowing for natural light to wash through the space.

Located on one of my favorite streets in the city, 1717 Rhode Island Ave is conveniently located between Dupont and Farragut North Metro Stations and within walking distance to a host of restaurants, amenities, and bars. Perks within the building include a private gym for tenants with showers and towel service.

Within 7 years remaining on the lease, this could be a great option for tenants looking to join the likes of Uber, Revolution and The Case Foundation in one of DC’s most unique, well-locted buildings.

For more information, please fill out our OFFICE SPACE QUESTIONNAIRE or EMAIL us directly!!

 

 

Recent Posts


 New York City Office Space Timeline

  • By Lance Leighton | September  11,  2014

How long does it take to lease commercial real estate in New York City? The TechOfficeSpaces.com Team is often asked how long it takes to move into new office space…

Year in Review – The Largest Office Relocations

  • By Lance Leighton | February  01,  2018

2017 was a solid year for New York City commercial office leasing.  Though the crystal ball for the future of Manhattan’s office market is a bit cloudy at the moment,…

Wingate Hughes’ Former Space Available for Sublease at

  • By Jon Glass | February  28,  2018

3,000 SF Sublease with Term Through June 2020 Perfect for Tech/Start-Up Companies   A large portion of the spaces featured here on the Washington, DC page of TechOfficeSpaces.com have been designed by Wingate…