Creative Tech Sublease Available at 1600 Wilson Blvd in Rosslyn

November 14, 2017

Anna Shaffer

Market Expert

Assistant Director, Savills Studley

DC/MD/VA Licensed Real Estate Broker

Call 202-540-5509

Higher Logic’s Tech-Friendly Space Available for Sublease as soon as March ’18

 

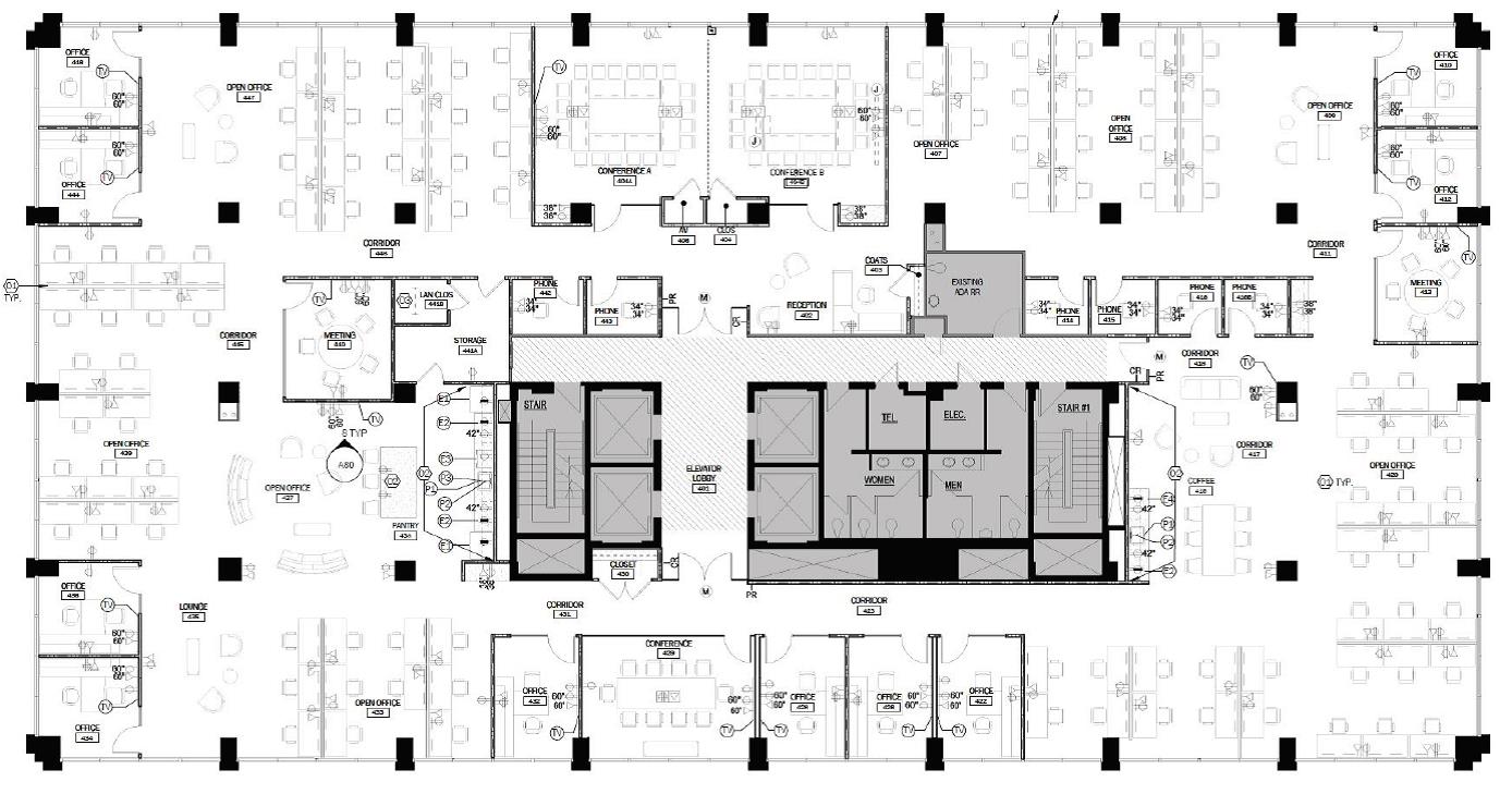
With an occupancy rate of 90%+ over the past two years, 1600 Wilson Blvd has been a bright light in a Rosslyn market that has been burdened with high vacancy rates. The building has leased so well that its premier tech tenant, Higher Logic has no room to grow contiguously within the building.  As a result, Higher Logic has listed its 13,378 SF space for sublease, creating a great opportunity for a mid-size tenant to have a big presence on an entire floor.   

The fully-furnished space accommodates 85 bench-like desks and 10 private offices, with adjustable height desks that are perfect for those that like to keep their fit-bit happy throughout the day. Spread out along the almost entirely-open floor are generous amounts of collaboration areas and phone rooms for when you need some quiet space.  Taking the efficiency of the space one step further, the larger of the two conference rooms has a movable partition which can divide this space into two.

When the clock turns five (or 5 o’clock somewhere), find your way into one of the two open kitchens which were made for entertaining and as such, offer built-in kegerators.  You could also venture downstairs to Rosslyn’s new Barley Mac for Happy Hour, or just enjoy a cold one in the comfort of your own office space.

Rosslyn continues to add more popular retail for the growing office and residential presence surrounding the R-B corridor.  Within a block of 1600 Wilson, you’ve got Kona Grill, Quinn’s on the Corner, and Guajillo for those days that can only be cooled down with a Margarita.  If the gym needs to happen before it’s time to play, the building offers a tenant-only fitness center, free to tenants.  Otherwise, Orange Theory is two doors down.

For those commuters that use the metro, it’s a three block walk from Rosslyn Metro and four blocks to Courthouse Metro station.

For more information on pricing, which is heavily discounted from direct rates in the building, please fill out our free office space questionnaire or email us directly!!!

 

 

Recent Posts


 New York City Office Space Timeline

  • By Lance Leighton | September  11,  2014

How long does it take to lease commercial real estate in New York City? The TechOfficeSpaces.com Team is often asked how long it takes to move into new office space…

Year in Review – The Largest Office Relocations

  • By Lance Leighton | February  01,  2018

2017 was a solid year for New York City commercial office leasing.  Though the crystal ball for the future of Manhattan’s office market is a bit cloudy at the moment,…

Wingate Hughes’ Former Space Available for Sublease at

  • By Jon Glass | February  28,  2018

3,000 SF Sublease with Term Through June 2020 Perfect for Tech/Start-Up Companies   A large portion of the spaces featured here on the Washington, DC page of TechOfficeSpaces.com have been designed by Wingate…