THE VISTA BUILDING IN THE BLACKWELDER CREATIVE CAMPUS

November 29, 2017

Matt Anderson

Market Expert

Assistant Director, Savills Studley

California Licensed Real Estate Salesperson

Call 213-553-3861

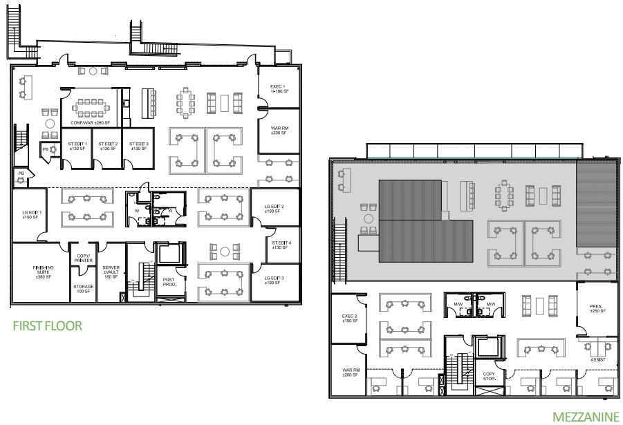
The Vista Building is a stunning 12,650 SF space within the creative campus bLAckwelder. It’s a free-standing CMU block and corrugated metal butler building standing 40’ tall. The building comes with on-grade private parking directly below the office space for easy ingress/egress directly to your space. It also comes with above grade 1st floor office with 24’ ceiling heights and a mezzanine level office with 11’6” ceiling height. The space boasts authentic creative features, including exposed HVAC, concrete floor, sand exposed steel girders and roof purlins. It comes with private in-suite men’s and women’s restrooms on both the 1st floor and mezzanine level. There is a private elevator serving ground level parking, 1st floor office and mezzanine level office space. Lastly, the space also comes with a large, private outdoor patio area and amazing views facing the Hollywood Hills.

The bLAackwelder campus is an adaptive reuse project of 19 existing standalone buildings on a 6.4-acre landmark campus in Culver City, CA. It’s a stunning historic and architectural significant campuses and is designed with the specific needs of creative companies in mind throughout the self-contained site of over 150,000 SF of curated creative office space.

For more information about this space or others like it, please contact us here.

Recent Posts


 New York City Office Space Timeline

  • By Lance Leighton | September  11,  2014

How long does it take to lease commercial real estate in New York City? The TechOfficeSpaces.com Team is often asked how long it takes to move into new office space…

Year in Review – The Largest Office Relocations

  • By Lance Leighton | February  01,  2018

2017 was a solid year for New York City commercial office leasing.  Though the crystal ball for the future of Manhattan’s office market is a bit cloudy at the moment,…

Wingate Hughes’ Former Space Available for Sublease at

  • By Jon Glass | February  28,  2018

3,000 SF Sublease with Term Through June 2020 Perfect for Tech/Start-Up Companies   A large portion of the spaces featured here on the Washington, DC page of TechOfficeSpaces.com have been designed by Wingate…